Proiectul Green Hills este alcătuit din patru case individuale, în care arhitectura minimalistă se îmbină cu accente contemporane.
Lotul de teren – suficient de mare încât să permită o organizare cu funcționalitățile necesare unei familii cu mai mulți copii.

Proiectul e alcătuit din patru case individuale, în care arhitectura minimalistă se îmbină cu accente contemporane. Situat in Baia Mare, într-o locație pitorească, în liniște și în natură, cu o priveliște de excepție, dar totuși aproape de centrul orașului, casa e ideală pentru familii, fiind spațioasă și frumos compartimentată.
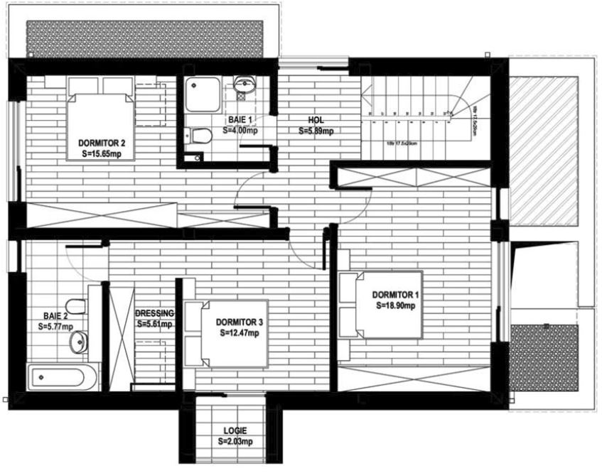
Casele dispun de o suprafață construită de 200 mp și 22 mp terase exterioare, fiind compartimentată în stil contemporan punând accent pe câteva aspecte precum intimitatea și organizarea cât mai bună a spațiului.
La parter este organizată zona socială și de activitate a casei, fiind compusă dintr-o camera de zi, 1 bucătărie, 1 cămară, 1 spațiu pentru centrala termică, 1 baie, 1 cameră (ce poate fi amenajată fie ca dormitor, fie ca birou), 1 hol și o terasă exterioară.
La etaj (mansarda) este zona de intimitate și de odihnă, fiind compusă din 3 dormitoare, 2 băi, 1 hol și 1 terasă exterioară. Unul din dormitoare este matrimonial, dispune de baie proprie și dressing încorporat în cameră). Așadar, compartimentarea casei este gândită pe principii ce conferă confort, funcționalitate și intimitate.



Comparator
ComparaţiePlease enter your username or email address. You will receive a link to create a new password via email.